Skip to main content

Apartament cu 4 camere Cosbuc la etajul 4/4

ID:2193
470 000 Euro
Galati, Cosbuc
Suprafata: 445m2
Etaj: 4/4
Camere: 4 camere
Compartimentare: Decomandat
Centrala: Da
Tamplarie PVC: Da
Izolatie: Da

Apartament cu 4 camere, Decomandat, in zona Cosbuc, situat la etajul 4/4, cu suprafata de 445 de mp2, centrala, termopan, izolatie.

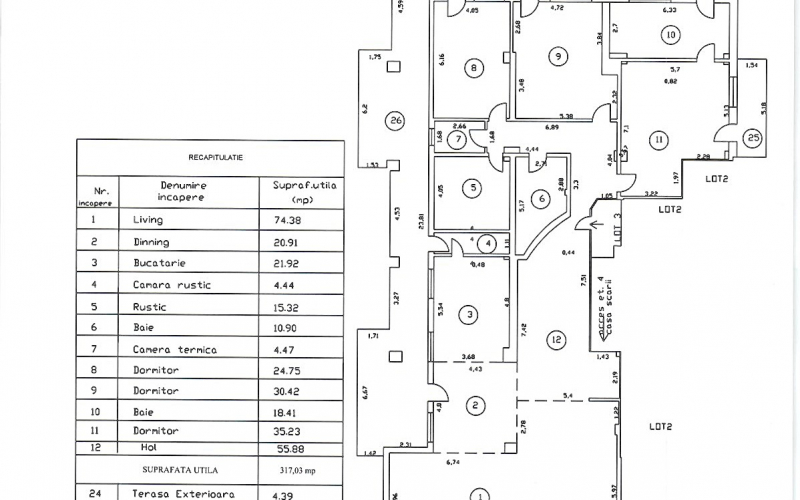
Pentru cei ce cauta superlativul in materie de locuire – un imobil cu adevarat UNIC, definit prin LUX, rafinament si o locatie privilegiata – Practic Imobiliare are onoarea de a va prezenta o oportunitate rara: un apartament spectaculos situat in prestigioasa si linistita zona Bulevardul Cosbuc. Bucurati-va de vecini de calitate si de o oaza de calm, ferita de agitatia urbana, fara a compromite accesul la facilitatile orasului. Descriere Detaliata: Acest apartament impresionant se desfasoara pe o suprafata utila generoasa de 317 mp, completata de terase magnifice insumand 128 mp, oferind un spatiu de locuit si relaxare rar intalnit. Compartimentarea inteligenta este gandita pentru un confort absolut si un stil de viata sofisticat: 1. Living Open Space Impunator: Inima casei, acest spatiu aerisit si luminos integreaza perfect: Bucataria moderna, cu mobilier elegant de import si dotata cu electrocasnice de ultima generatie, ideala pentru pasionatii de arta culinara. Zona de dining spatioasa, perfecta pentru mese memorabile alaturi de familie si prieteni. Semineul functional, ce adauga o nota de caldura si ambianta serilor de relaxare. Acces direct catre terasa principala, o extensie naturala a zonei de zi, ce ofera o priveliste panoramica superba asupra orasului – locul ideal pentru momente de destindere sau socializare. 2. Trei Dormitoare Spatioase: Fiecare conceput ca un sanctuar de odihna si intimitate. 3. Doua Bai Elegante: Finisate cu materiale premium, reflectand standardul inalt al intregului apartament. 4. Dressing Generos: Spatiu dedicat si optimizat pentru organizarea garderobei. 5. Camera Tehnica: Functionalitate si eficienta pentru buna administrare a locuintei. 6. Trei Terase Exterioare: Pe langa terasa principala, beneficiati de spatii exterioare suplimentare, perfecte pentru a savura o cafea dimineata sau pentru a admira apusul. Dotari si Finisaje de Exceptie: Calitatea este cuvantul de ordine. Apartamentul este dotat cu centrala termica proprie si multiple aparate de aer conditionat, asigurand un confort termic optim pe tot parcursul anului. Finisajele interioare si dotarile sunt realizate la un standard inalt, reflectand atentia la detalii si bunul gust. Avantaje Suplimentare: Doua Locuri de Parcare: Incluse in pret, un beneficiu esential in zonele centrale. Complet Mobilat si Utilat: Apartamentul se vinde exact asa cum il vedeti – gata de mutat, fara eforturi suplimentare, cu mobilier si echipamente de calitate superioara. Concluzie: Aceasta proprietate reprezinta o alegere exceptionala pentru persoanele exigente, care isi doresc un stil de viata luxos, confortabil si discret. Va invitam sa descoperiti personal unicitatea si rafinamentul acestui apartament deosebit.