Skip to main content

Apartament cu 2 camere Micro 18 la etajul 10/10

ID:15738
55 000 Euro
Galati, Micro 18
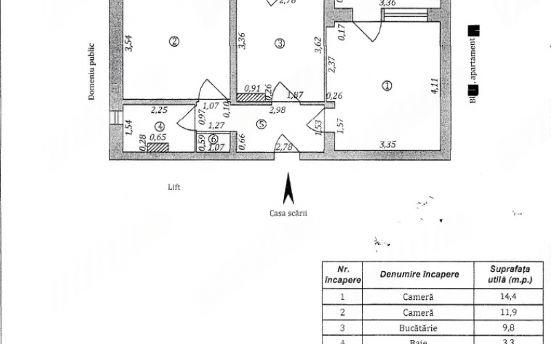
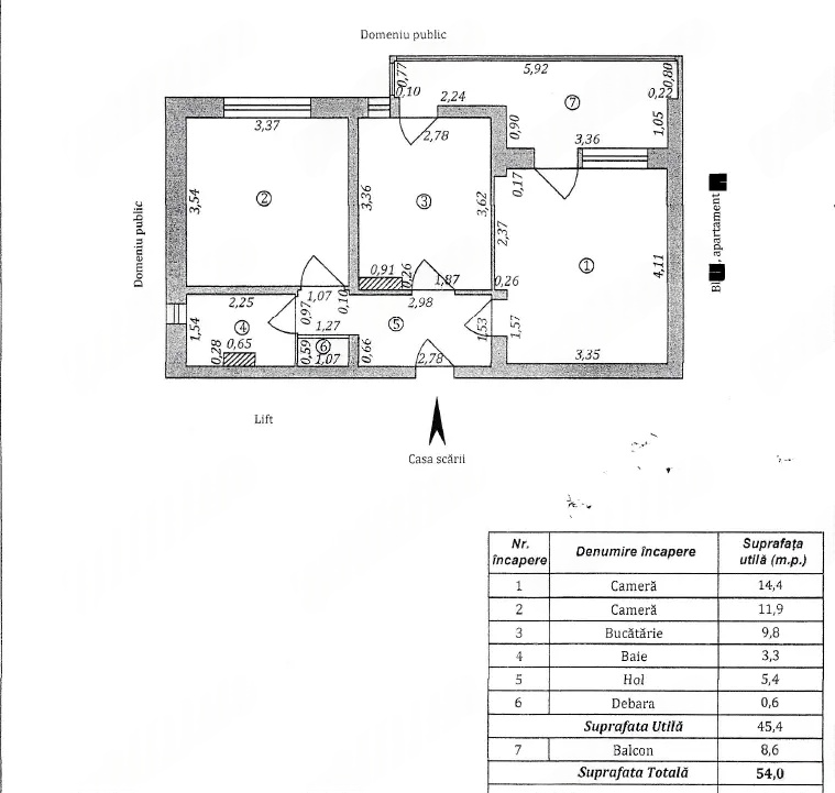
Suprafata: 54m2
Etaj: 10/10
Camere: 2 camere
Compartimentare: Decomandat
Centrala: Da
Tamplarie PVC: Da
Izolatie: Nu

Apartament cu 2 camere, Decomandat, in zona Micro 18, situat la etajul 10/10, cu suprafata de 54 de mp2, centrala, termopan.